About this property
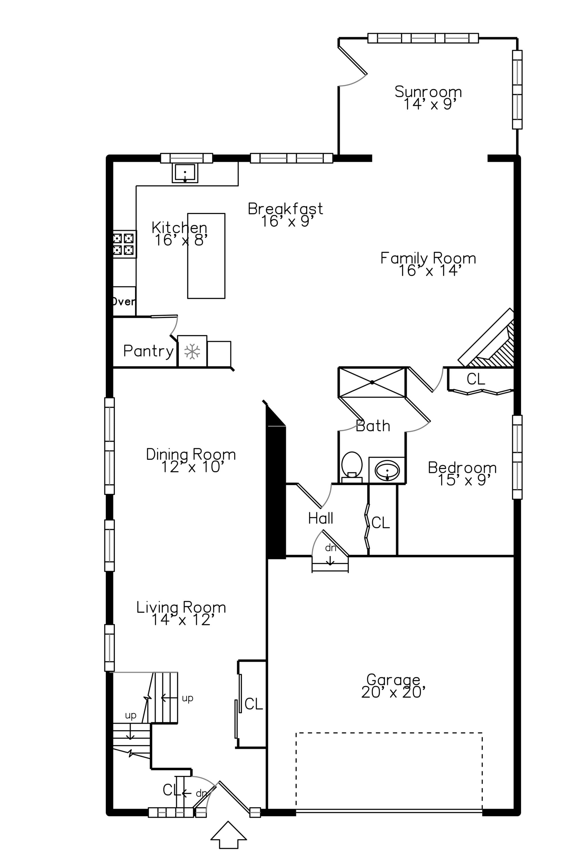
Welcome to 49917 Ocean Drive, a breathtaking 2019 colonial masterpiece nestled in the serene enclave of The Landings at Cherry Hill Village, within the revered Plymouth Canton School District. This home stands as a beacon of modern living, boasting an expansive layout that includes 5 bedrooms—with a coveted main-level suite—3 full baths, and an airy loft area, all harmoniously blending functionality with sophisticated design.
The open-concept kitchen, a space I personally adore, is the heart of this home. It's equipped with high-end stainless-steel appliances, soft-close cabinetry, and pull-out drawers, all designed to cater to your culinary adventures. Adjacent to the kitchen, the living room, anchored by a cozy fireplace, creates an inviting atmosphere for family gatherings and entertaining guests. The addition of a sun-drenched sunroom offers tranquil views of the adjacent nature preserve, allowing the beauty of the outdoors to seamlessly integrate with the home's elegant interior.
One of the home's most distinctive features is its main-level suite, an ideal retreat for guests, ensuring privacy and comfort. The upper level unveils a sprawling owner's suite, complete with his and hers closets and breathtaking views of the nature preserve—a personal haven for relaxation. Additionally, the convenience of a large second-floor laundry room epitomizes thoughtful design by eliminating the daily hassle of navigating stairs for household chores.
The daylight basement, partially finished and plumbed for an additional bath, presents endless possibilities for customization, ready to be transformed into your dream space. Located on a private cul-de-sac, this home promises a lifestyle of exclusivity and convenience, with easy access to Ford Rd shopping, I-275, and the highly sought-after Plymouth Canton Schools.
With motivated sellers and the option to negotiate furnishings, 49917 Ocean Drive is more than a home—it's a gateway to a lifestyle of luxury, comfort, and unparalleled convenience. Don't miss the opportunity to make this exquisite property your own.